 
			 
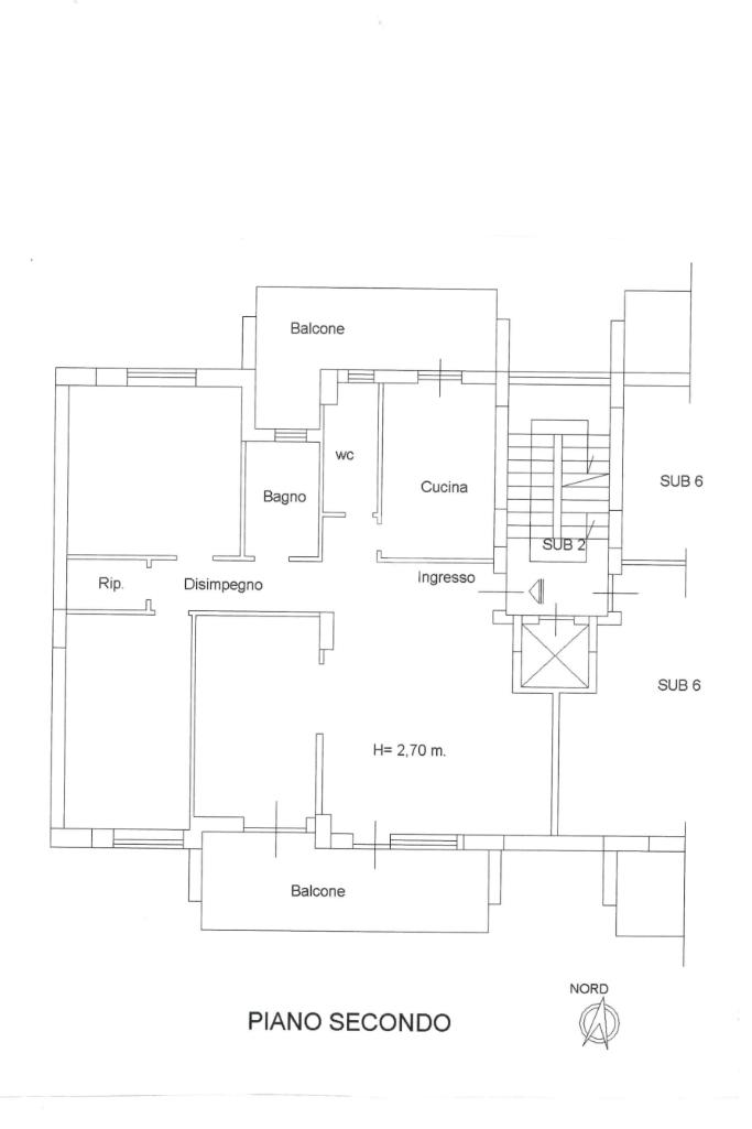
				ALATRI - In zona residenziale, centrale e ben servita proponiamo in vendita un appartamento al secondo piano di 120 mq che offre una distribuzione funzionale degli spazi, articolata in 3 ampi locali. Gli ambienti interni sono ben illuminati e si compongono nel seguente modo: ampio soggiorno con camino, cucina abitabile, 2 balconi, 2 camere da letto, 2 bagni, uno con vasca e l'altro con doccia ed infine un ripostiglio. Con box auto privato.
La posizione strategica consente di raggiungere facilmente i principali servizi e le vie di comunicazione, rendendo questa proprietà una scelta interessante per chi desidera vivere in una zona tranquilla ma ben collegata. L'appartamento rappresenta un'opportunità per chi è alla ricerca di una soluzione abitativa che coniughi comfort e praticità.
 Immobile valutato con T·Valuta
Immobile valutato con T·Valuta
								Ti interessa visionare l'immobile?