 
			 
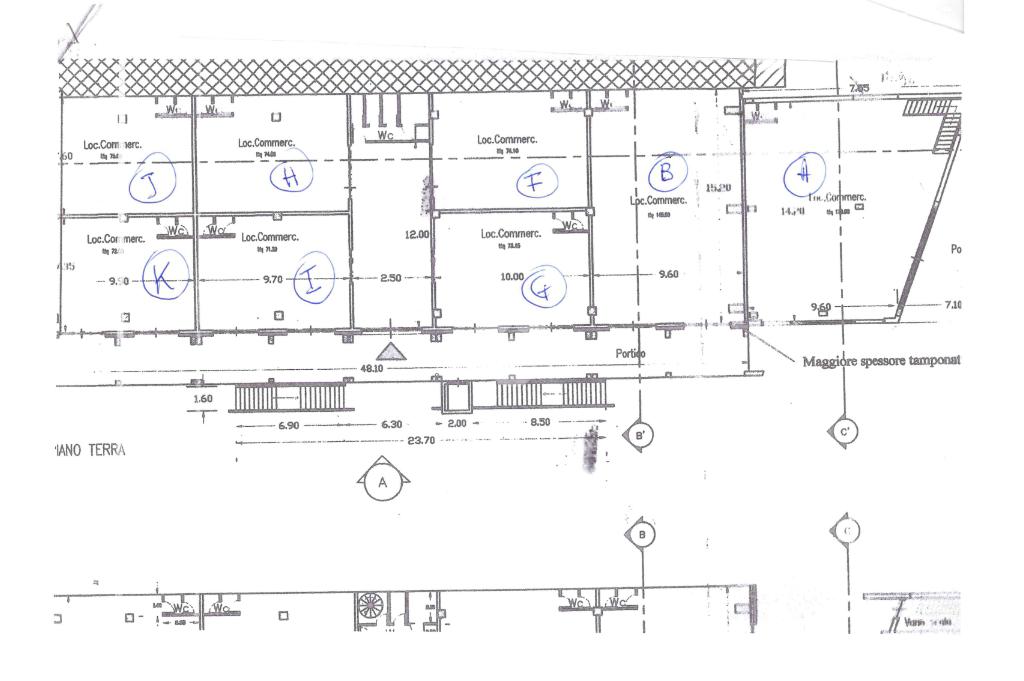
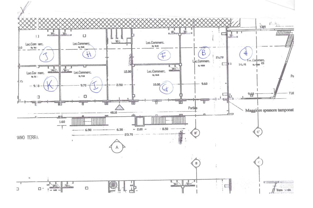
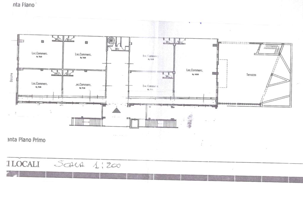
				In zona Chiappitto centralissima lungo la strada principale, in complesso commerciale denominato 'I Ciclopi' si propongono in vendita 6 locali commerciali di nuova costruzione di diverse metrature, a partire da 129.000 € comunicanti con centro commerciale gà esistente.
I locali sono dotati di ampio parcheggio, ingresso esclusivo dalla strada principale che collega diverse attività della zona.
I locali vengono venduti finiti chiavi in mano, con impiantistica pronta e certificato di agibilità.
Ti interessa visionare l'immobile?