Casa semindipendente in vendita

Alatri, Via Accorciatoia Seritico
€ 45.000
2 locali 2 locali
80 Mq 80 Mq
1 bagno 1 bagno

Casa semindipendente in vendita

Alatri, Via Accorciatoia Seritico

Descrizione annuncio

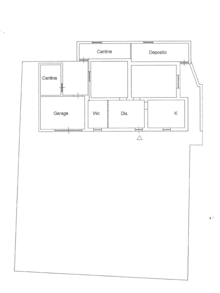
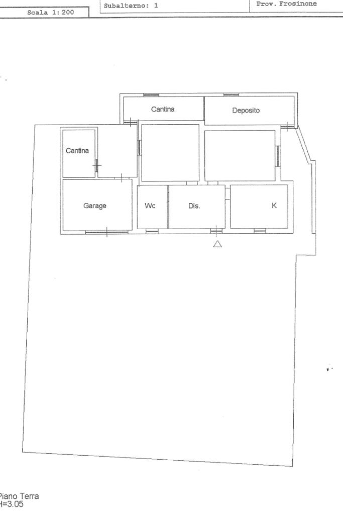
Zona Seritico, assolata e tranquilla proponiamo in vendita un accogliente appartamento di 80 mq, situato al piano terra con terreno di proprietà.

L'immobile offre una disposizione funzionale degli spazi: la zona giorno si apre su un luminoso soggiorno, ideale per momenti di relax e convivialità. La cucina, separata, è perfetta per chi ama cucinare in tranquillità. La zona notte comprende una spaziosa camera da letto, garantendo comfort e privacy. Il bagno, ben rifinito, completa l'interno dell'abitazione.

All'esterno, un giardino privato offre uno spazio verde per godere di momenti all'aria aperta.

Questa soluzione abitativa rappresenta un'opportunità interessante per chi cerca una residenza tranquilla e ben collegata nel comune di Alatri.

Mostra tutto

Nelle vicinanze

Scuole Scuole
Scuole
2,7 Km
Liceo Ginnasio Statale Conti Gentili
2,8 Km
Farmacia Farmacia
Farmacia
2,3 Km
Farmacia Piacitelli
2,9 Km
Ospedali Ospedali
Pronto Soccorso Ospedale "San Benedetto"
1,8 Km
Ospedali
1,8 Km
Supermercati Supermercati
Euro Spin
2,4 Km
Conad Upim
2,7 Km
Negozi Negozi
Salumi e Formaggi
2,5 Km
Explorer
2,9 Km
Bar Bar
Bar Luigi
2,2 Km
Bar
2,3 Km
Bar 91
2,8 Km
Bar dell'Acropoli
2,9 Km
Bar del Corso
2,9 Km
Ristoranti Ristoranti
La Taverna del Barone
2,3 Km
La Rocca
2,3 Km
La Conca
2,7 Km
Hostaria Apicius
2,9 Km
Roadhouse
2,9 Km
Mostra tutto

Caratteristiche

Rif.:
61105092
Piano:
Terra
Posti auto:
1
Camere da letto:
1
Condizionamento:
Assente
Ascensore:
No
Mostra tutto
Prezzo Prezzo
€ 45.000
Rata mutuo Rata mutuo
€ 212 / mese
Proponi il tuo prezzoProponi il tuo prezzo
Immobile valutato con T·Valuta

Classe Energetica

G
G
G
G
G
G
G
G
G
Anno di costruzione:
1980
Riscaldamento:
Assente

Ti interessa visionare l'immobile?

Fissa un appuntamento  Fissa un appuntamento

Richiedi informazioni

Clicca su Leggi per aprire l'informativa
* Questi campi sono obbligatori

Calcola il tuo mutuo

Semplice e senza impegno
Anticipo

( % )
Mutuo

( % )

pochi semplici passi

inserisci i tuoi dati
Questionario completato
Grazie per aver richiesto un appuntamento senza impegno con un nostro Consulente del Credito e Assicurativo.

Hai inserito correttamente tutti i dati necessari e a breve riceverai una e-mail con un link da convalidare per inviare i tuoi dati.
Affiliato
Alatri Immobiliare Srl
Via Circonvallazione, 22 03011 Alatri (FR)

Il nostro staff


  • Giuliano Paglia
    Affiliato

  • Elisa Gori
    Collaboratrice

  • Sara Tofani
    Coordinatrice
Via Circonvallazione, 22 03011 Alatri (FR)
Zona: Alatri
Mostra su mappa
Orari: 9:00-13:00 15:30-19:30
Affiliato
Alatri Immobiliare Srl
Via Circonvallazione, 22 03011 Alatri (FR)

2025 Tecnocasa Franchising S.p.A. - P. IVA 08365160152 - Via Monte Bianco 60/A 20089 Rozzano (MI). Ogni agenzia ha un proprio titolare ed è autonoma. Privacy policy | Policy utilizzo | Cookie policy