Casa indipendente in vendita

Alatri, Vicolo Petronio
€ 65.000
7 locali 7 locali
270 Mq 270 Mq
2 bagni 2 bagni

Casa indipendente in vendita

Alatri, Vicolo Petronio

Descrizione annuncio

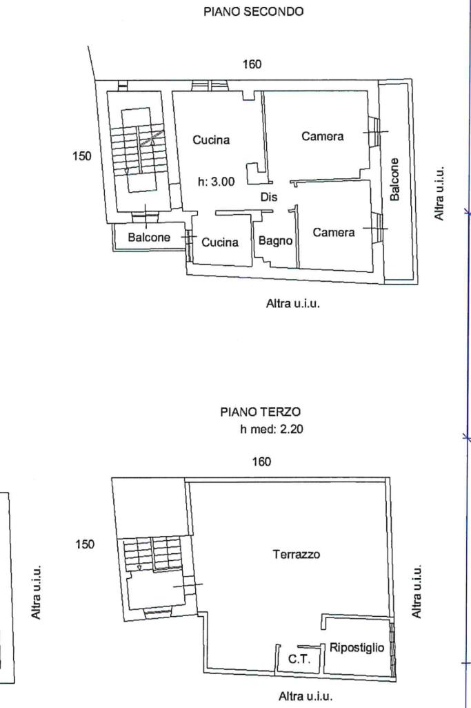
Centro storico nei pressi di Piazza Santa Maria Maggiore proponiamo in vendita una casa indipendente di 270 mq su più livelli perfetta per chi cerca spazio e comfort. L'immobile, di categoria civile, è stato costruito nel 1950 e ristrutturato nel 2019, garantendo un connubio tra fascino storico e modernità.

La casa si sviluppa in più locali, offrendo ampie possibilità di personalizzazione degli spazi. L'immobile è suddiviso in 2 parti che possono essere uilizzate come 2 appartamenti distinti, entrambi civile abitazione. Il primo appartamento si sviluppa al piano terra e primo piano, attualmente usato come studio o sala hobby ed è composto da più locali e un bagno di servizio; il secondo appartamento si sviluppa al 2° piano ed è composto da sala da pranzo, cucina abitabile, bagno con doccia, 2 camere da letto e un ampio balcone. Al 3° ed ultimo piano abbiamo un grande terrazzo che affaccia sui tetti del centro, ideale per momenti di relax all'aperto.

Questa proprietà rappresenta un'opportunità unica per chi desidera vivere in un contesto tranquillo, senza rinunciare alla comodità di una casa ben strutturata e recentemente rinnovata.

Mostra tutto

Nelle vicinanze

Scuole Scuole
Scuole
180 m
Liceo Ginnasio Statale Conti Gentili
210 m
Farmacia Farmacia
Farmacia
200 m
Farmacia Piacitelli
210 m
Ospedali Ospedali
Ospedali
1,4 Km
Pronto Soccorso Ospedale "San Benedetto"
1,5 Km
Supermercati Supermercati
Conad Upim
290 m
Euro Spin
1,9 Km
Negozi Negozi
Salumi e Formaggi
310 m
Explorer
470 m
Alimentari
590 m
Bar Bar
Bar dell'Acropoli
160 m
Bar 91
180 m
al chioschetto da Pippetto
290 m
Bar del Corso
290 m
Street 155
1,8 Km
Ristoranti Ristoranti
Osteria Bacco e Ciacco
170 m
the Secret
170 m
Pizzeria la Rosetta
200 m
La Conca
210 m
Roadhouse
250 m
Mostra tutto

Caratteristiche

Rif.:
61108758
Totale piani:
3
Balconi:
1
Terrazzi:
1
Camere da letto:
2
Condizionamento:
Autonomo
Mostra tutto
Prezzo Prezzo
€ 65.000
Rata mutuo Rata mutuo
€ 306 / mese
Proponi il tuo prezzoProponi il tuo prezzo

Classe Energetica

G
G
G
G
G
G
G
G
G
Anno di costruzione:
1950
Riscaldamento:
Autonomo
Tipo impianto:
A radiatori
Tipo alimentazione:
Metano

Ti interessa visionare l'immobile?

Fissa un appuntamento  Fissa un appuntamento

Richiedi informazioni

Clicca su Leggi per aprire l'informativa
* Questi campi sono obbligatori

Calcola il tuo mutuo

Semplice e senza impegno
Anticipo

( % )
Mutuo

( % )

pochi semplici passi

inserisci i tuoi dati
Questionario completato
Grazie per aver richiesto un appuntamento senza impegno con un nostro Consulente del Credito e Assicurativo.

Hai inserito correttamente tutti i dati necessari e a breve riceverai una e-mail con un link da convalidare per inviare i tuoi dati.
Affiliato
Alatri Immobiliare Srl
Via Circonvallazione, 22 03011 Alatri (FR)

Il nostro staff


  • Giuliano Paglia
    Affiliato

  • Elisa Gori
    Collaboratrice

  • Sara Tofani
    Coordinatrice
Via Circonvallazione, 22 03011 Alatri (FR)
Zona: Alatri
Mostra su mappa
Orari: 9:00-13:00 15:30-19:30
Affiliato
Alatri Immobiliare Srl
Via Circonvallazione, 22 03011 Alatri (FR)

2026 Tecnocasa Franchising S.p.A. - P. IVA 08365160152 - Via Monte Bianco 60/A 20089 Rozzano (MI). Ogni agenzia ha un proprio titolare ed è autonoma. Privacy policy | Policy utilizzo | Cookie policy