Villa singola in vendita

Alatri, Via Scopigliette - Tecchiena
€ 190.000
Prezzo aggiornato
4 locali 4 locali
250 Mq 250 Mq
3 bagni 3 bagni

Villa singola in vendita

Alatri, Via Scopigliette - Tecchiena

Descrizione annuncio

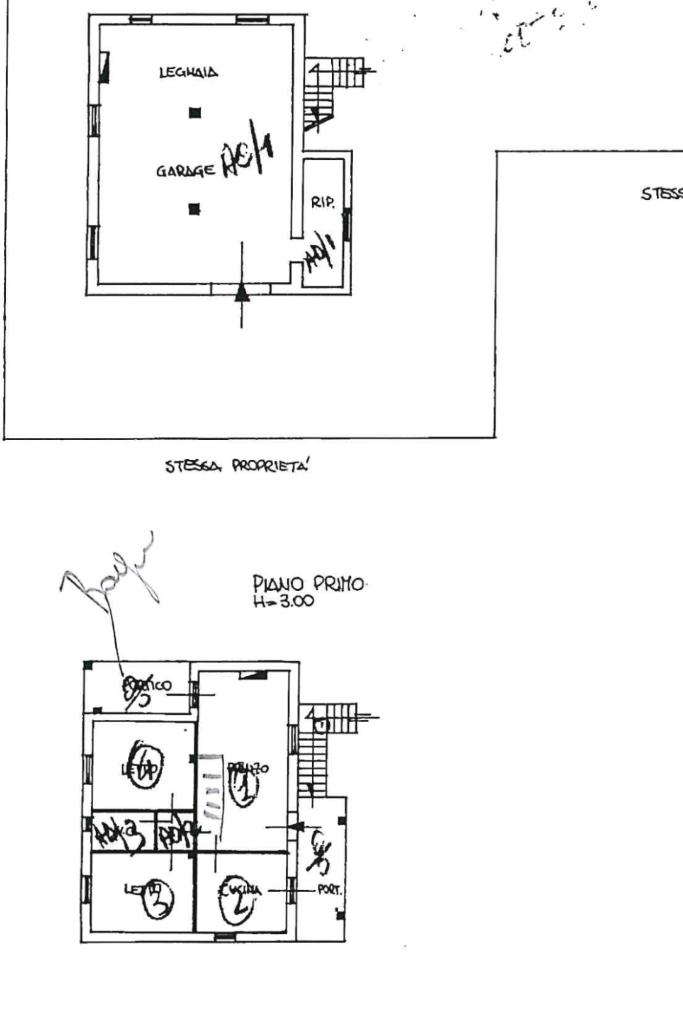
TECCHIENA - In zona tranquilla e assolata, a pochi passi dalla Strada Statale 155 e a qualche minuto da via Casilina si propone in vendita villa sngola su 2 livelli in buono stato.

L'immobile ha un ingresso completamente indipendente con cancello manuale, un ampio ingresso e un piazzale abbastanza spazioso con del verde intorno; qui abbiamo un portico dove poter parcheggiare la macchina e adiacente c'è un campetto da tennis riservato alla proprietà.

La soluzione ha doppio accesso, si può entrare quindi sia dalla taverna molto spaziosa tramite un'entrata secondaria situata vicino al portico dove troviamo anche un ampio riportiglio o deposito per attrezzi e un bagno di servizio o dall'entrata principale situata al primo piano che raggiungiamo grazie a una scala esterna dove abbiamo un piccolo balconcino e la porta d'ingresso.

All'interno della soluzione sono presenti una sala da pranzo, un angolo cottura, 2 camere da letto e 2 bagni, uno con doccia e il secondo con vasca.

L'immobile si presenta in buono stato, il riscaldamento è alimentato con Gpl o con stufa a pellet.

Mostra tutto

Nelle vicinanze

Trasporto pubblico Trasporto pubblico
Trasporto pubblico
320 m
Farmacia Farmacia
Il Farmacista
2,3 Km
Supermercati Supermercati
dí per dí
1,7 Km
Negozi Negozi
Kairos
880 m
Alimentari
2,8 Km
Bar Bar
Blue Bar
610 m
Bar Anna
1,4 Km
Street 155
1,5 Km
al chioschetto da Pippetto
2,9 Km
Ristoranti Ristoranti
Osteria Porca Vacca
870 m
Bacco e Ciacco
2,1 Km
Ristorante Sisto
2,2 Km
Ristorante - Centro Sportivo "Villa Verde"
2,2 Km
Trattoria La Pezza
2,5 Km
Mostra tutto

Caratteristiche

Rif.:
60977530
Box:
1
Posti auto:
3
Camere da letto:
2
Condizionamento:
Assente
Ascensore:
No
Mostra tutto
Prezzo Prezzo
€ 190.000
Rata mutuo Rata mutuo
€ 897 / mese
Proponi il tuo prezzoProponi il tuo prezzo

Classe Energetica

G
G
G
G
G
G
G
G
G
EP globale non rinnovabile:
175.00 kW h/m² anno
EP invernale del fabbricato:
EP estiva del fabbricato:
Anno di costruzione:
1980
Riscaldamento:
Autonomo
Tipo impianto:
A radiatori
Tipo alimentazione:
GPL

Prezzo ridotto di €1 (10%%)

Ti interessa visionare l'immobile?

Fissa un appuntamento  Fissa un appuntamento

Richiedi informazioni

Clicca su Leggi per aprire l'informativa
* Questi campi sono obbligatori

Calcola il tuo mutuo

Semplice e senza impegno
Anticipo

( % )
Mutuo

( % )

pochi semplici passi

inserisci i tuoi dati
Questionario completato
Grazie per aver richiesto un appuntamento senza impegno con un nostro Consulente del Credito e Assicurativo.

Hai inserito correttamente tutti i dati necessari e a breve riceverai una e-mail con un link da convalidare per inviare i tuoi dati.
Affiliato
Alatri Immobiliare Srl
Via Circonvallazione, 22 03011 Alatri (FR)

Il nostro staff


  • Giuliano Paglia
    Affiliato

  • Elisa Gori
    Collaboratrice

  • Sara Tofani
    Coordinatrice
Via Circonvallazione, 22 03011 Alatri (FR)
Zona: Alatri
Mostra su mappa
Orari: 9:00-13:00 15:30-19:30
Affiliato
Alatri Immobiliare Srl
Via Circonvallazione, 22 03011 Alatri (FR)

2025 Tecnocasa Franchising S.p.A. - P. IVA 08365160152 - Via Monte Bianco 60/A 20089 Rozzano (MI). Ogni agenzia ha un proprio titolare ed è autonoma. Privacy policy | Policy utilizzo | Cookie policy