 
			 
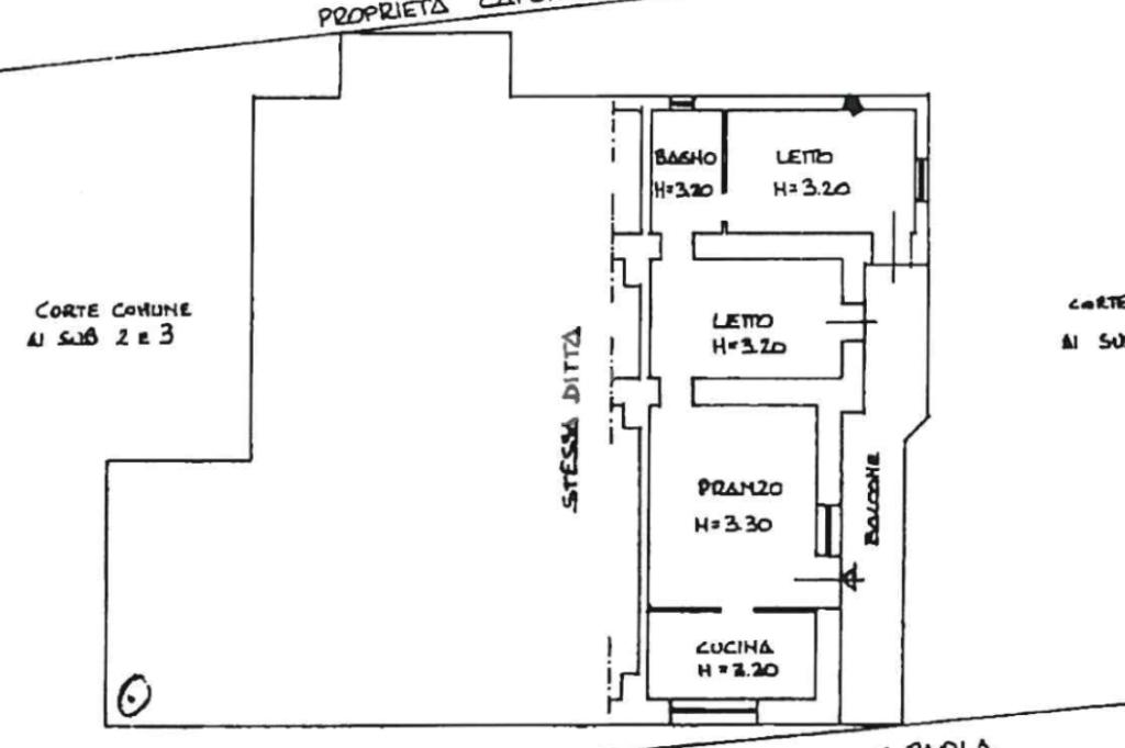
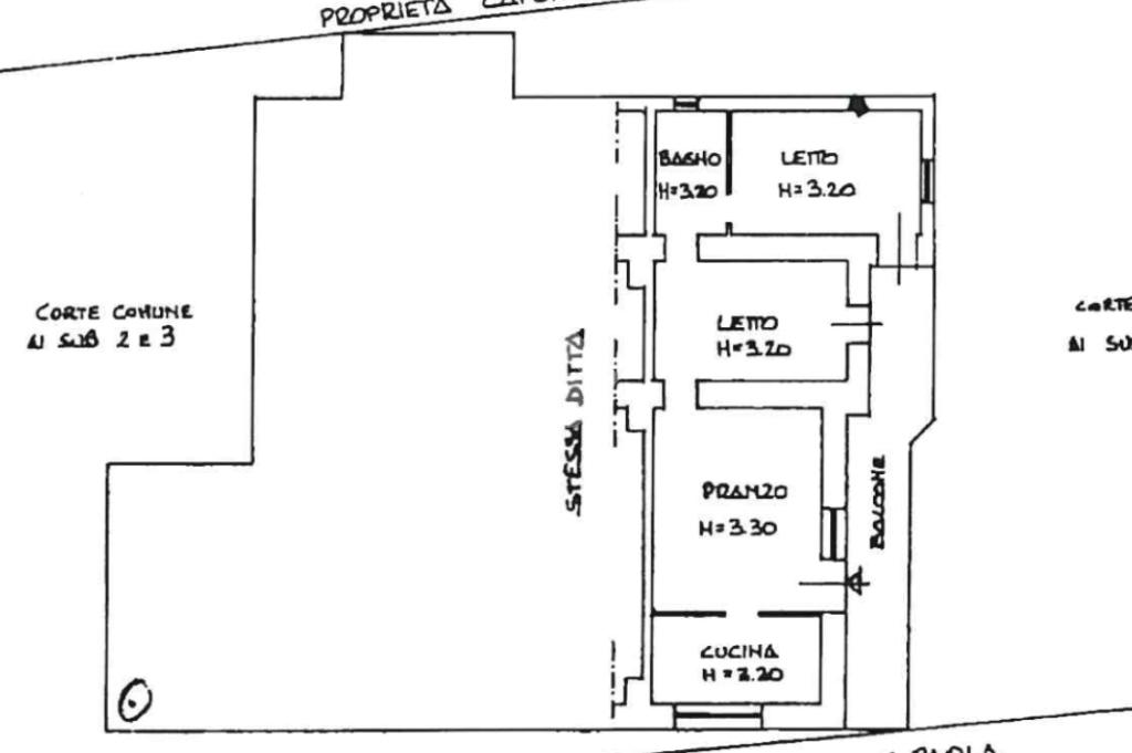
				FUMONE - AI piedi del caratteristico borgo, in zona ben servita lungo la . 24 per Ferentino si propone in vendita fabbricato indipendente piano terra e piano seminterrato. La soluzione al piano terra è composta da un locale commerciale di 180 mq circa con servizi e 90 mq di appartamento residenziale adiacente composto da sala,cucina abitabile, disimpegno, bagno con doccia e camera da letto che può essere ridestinato ad attività commerciale.
Al piano seminterrato troviamo locali cantina e deposito di circa 100 mq e a completare la proprietà un terreno edificabile e corte con indice di edificabilità 06 ovvero con possibilità di costruire circa 400 mq di fabbricato a destinazione artigianale e commerciale a livello e in sopraelevazione.
Lo stabile è ideale per essere destinato ad attività ricettive, B&B , attività ricreative, impianto sportito e tante altre tipologie.
Ti interessa visionare l'immobile?